رحاب المدينة ٢

فيلا نموذج B

إجمالي مساحة الأرض: 200 م2
مسطحات البناء: 339 م2
5

غرف نوم

أجنحة نوم

2

مجلس ضيوف

7

دورة مياه

صالة

1

صالة معيشة

1

مطبخ

غرفة طعام

1

صالة طعام

1

غرفة خادمة

1

غرفة غسيل

1

غرفة سائق

1

مسبح

التكييف المخفي

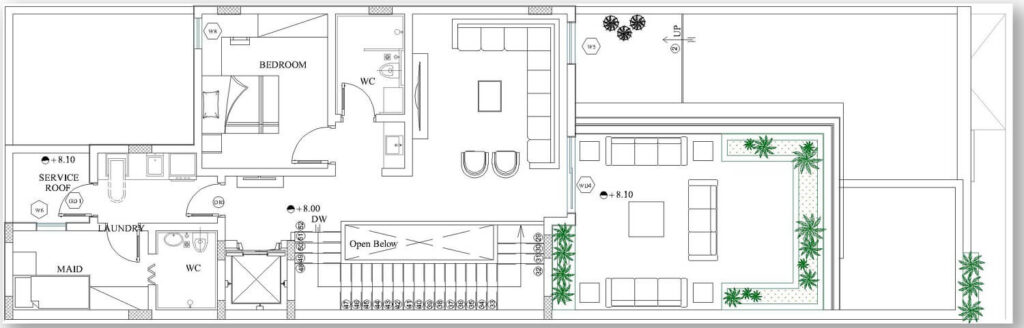
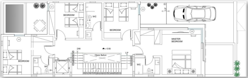
التصميم المعماري

الطابق الأول
الطابق الأول
الطابق الثاني
الطابق الثاني
الملحق
الملحق

الضمانات

العنصر المدة
ضمان شركة ملاذ للتأمين 10 سنوات
الإنارة 5 سنوات
قوابس الكهرباء + الطبالين 25 سنة
تمديدات السباكة 15 سنة
العزل المائي والحراري 10 سنوات
العنصر المدة
تأسيس التكييف 5 سنوات
مراوح التهوية 5 سنوات
خزانات المياه – السفلية 25 سنوات
العنصر المدة
خزانات المياه – العلوية 10 سنوات
الأطقم الصحية 5 سنوات
Scroll to Top